
INCH-POUND
MIL-DTL-24223/3B(SH)
28 January 2014
SUPERSEDING
MIL-L-24223/3A(SH)
22 October 1986
DETAIL SPECIFICATION SHEET
LOUDSPEAKER, SHIPBOARD ANNOUNCING SYSTEMS
ENCASED, 70/95 VOLT, 80 VOLT-AMPERES
Reinstated after 28 January 2014 and may be used for
new and existing designs and acquisitions.
This specification is approved for use within the Naval Sea Systems Command, Department of the Navy, and is
available for use by all Departments and Agencies of the Department of Defense.
The requirements for acquiring the product described herein shall consist of this specification sheet and
MIL-DTL-24223.
28.00 MAX.
(.370)
27.250
22.125
17.125
.437
14.250
10.125
FRONT
.190
5.125
EDGE
(.180)
(.840)
4.187
12.000 MAX.
10.781
TOP VIEW
SIDE VIEW
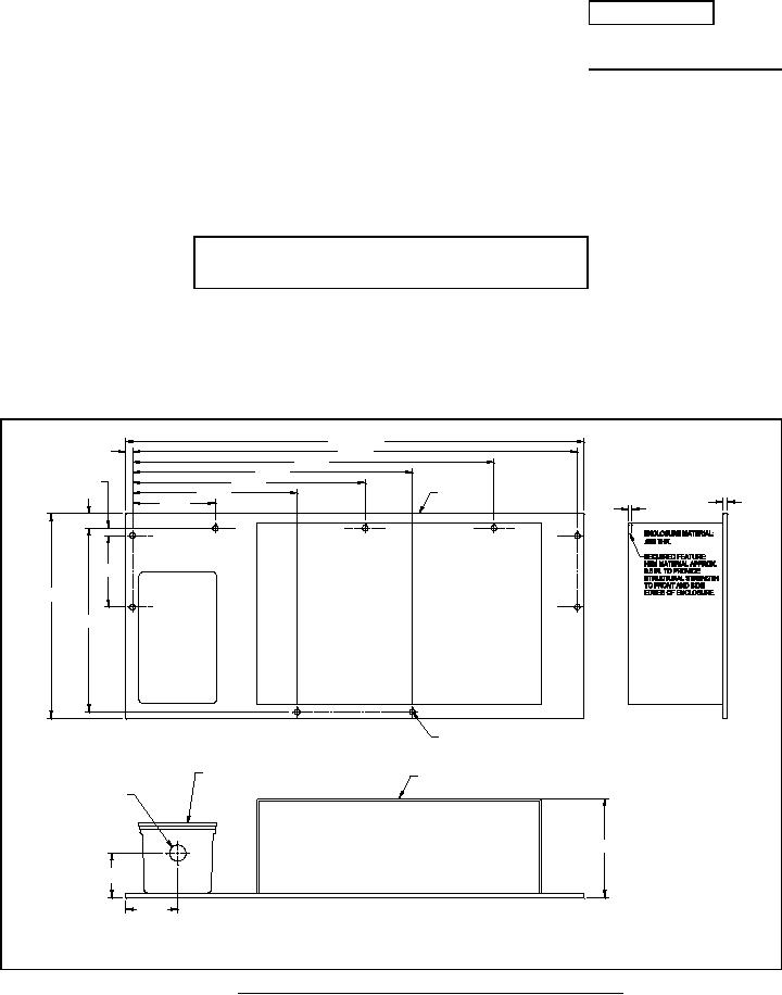
X9 Ø.312 USED FOR MOUNTING
TRANSFORMER ENCLOSURE
HORN ENCLOSURE (REF. ONLY)
(REF. ONLY)
HOLE FOR
CABLE ENTRY
Ø1.025
6.000 MAX.
(2.57)
(3.19)
REAR VIEW
FIGURE 1. Mounting dimensions and cable entrance for LS-657()/SIC.
PHYSICAL REQUIREMENTS:
AMSC N/A
FSC 5965
For Parts Inquires call Parts Hangar, Inc (727) 493-0744
© Copyright 2015 Integrated Publishing, Inc.
A Service Disabled Veteran Owned Small Business